Жилищна сграда
АКТ 14
ГАРАНЦИОННИ
СРОКОВЕ
конструкция на сградата
-
10год.
хидроизолационни работи - 7год.
всички строително-монтажни
и довършителни работи - 5год.
вътрешни инсталации -
7год.
Гаранционните срокове се определят съгласно чл.20, ал.4 от
Наредба №2 и започват да текат от деня на издаване на разрешение за ползване
на строежа, съгласно чл.20, ал.3 от Наредба 2, във връзка с чл.160, ал.4 и
ал.5 ЗУТ.
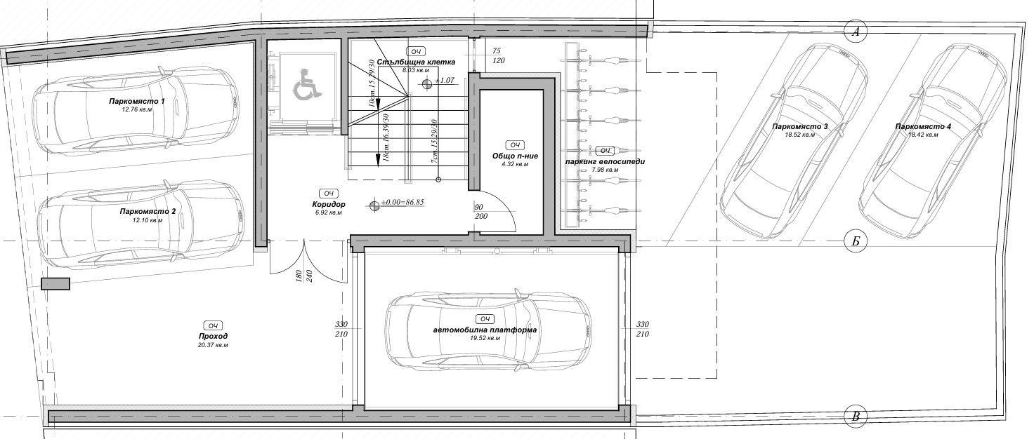
| имот | вид | застроена площ | обща площ | изложение | статус |
|---|---|---|---|---|---|
| Паркомясто №1 | Наземно | 12,76 | продаден | ||
| Паркомясто №2 | Наземно | 12,10 | продаден | ||
| Паркомясто №3 | Наземно | 18,52 | продаден | ||
| Паркомясто №4 | Наземно | 18,42 | продаден |
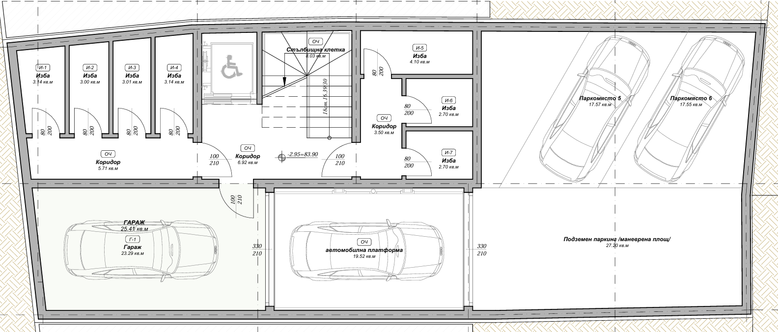
| имот | вид | застроена площ | обща площ | изложение | статус |
|---|---|---|---|---|---|
| Гараж | Подземно | 23,29 | продаден | ||
| Паркомясто №5 | Подземно | 17,57 | продаден | ||
| Паркомясто №6 | Подземно | 17,55 | продаден |
Галерия
Галерия
Допълнителна информация
- Машинна мазилка
- Мокри помещения – БДС
- Дневни и спални – БДС
- Коридори – БДС
- Мокри помещения – БДС
- Изпълнени обмазна хидроизолация и замазка с наклон. Настилка от мразоустойчив гранитогрес.
- Изпълнени с положени пластове по детайл – битумна паро-изолация, топлоизолация от екструдиран пено-полистирол – XPS 12см., армирана замазка с наклон, два пласта рулонна битумна хидроизолация. Настилка от мразоустойчив гранитогрес.
- Водопровод - изпълнен с полипропиленови тръби с PN 16 и PN 20 за студена и топла вода - до тапа. Монтирана топлоизолация на всички открити участъци с оглед предотвратяване образуването на конденз. Монтирани водомери с опция за монтаж на модул за дистанционно отчитане.
- Канализация - изпълнена с РVС тръби, до тапи.
- Сградата ще се захрани с топлоносител топла вода от градската топлофикационна мрежа на "Топлофикация София" ЕАД.
- Изпълнена тръбна разводка в апартаментите от полиетиленови тръби с алуминиева вложка, положена в гофрирани тръби по пода - под замазката, от апартаментна колекторна кутия до всеки радиатор. От колекторната кутия могат да се управляват (пускат или спират) отделните радиатори в помещенията. В окомплектоването на колекторната кутия, не е включен измервателен уред (топломер), като за монтажа на същия е предвидено място.
- Монтирани алуминиеви радиатори.
- Мокри помещения – изпълнена от PVC тръби с отвеждане над покрива, изпълнено ел. захранване, без монтирани вентилатори. • Кухни / кухненски боксове – изпълнена с готови двойни сифонни коминни тела. Индивидуално включване се осъществява към малкия отвор на коминното тяло. Отворите за аспирация се правят при монтаж на кухненското оборудване от клиента в зависимост от вида и височината на отвеждащия тръбопровод.